所屬分類:造粒機系列
產品簡介:產品特點:1、物料經機械壓力強制壓縮成型,無需任何添加劑,產品純度得到保證。2、干粉直接造粒,無需后續(xù)干燥過程,更有利于...
CHENJU GANZAO
Product introduction產品特點:
1、物料經機械壓力強制壓縮成型,無需任何添加劑,產品純度得到保證。
2、干粉直接造粒,無需后續(xù)干燥過程,更有利于現有生產流程的銜接和改造。
3、顆粒強度高,堆積比重的提高較其它造粒方式都更為顯著。
4、適應原料范圍廣、顆粒強度可根據不同物料自由調整。
5、結構緊湊、維修方便、操作簡單、工藝流程短、能耗低、效率高、故障率低。
6、可控制環(huán)境污染,減少粉體浪費和包裝成本,提高產品運輸能力。
7、加料和喂料裝置采用變頻控制,自動化程度高,可實現一人多機控制,勞動強度低。
8、主要傳動部件均采用優(yōu)質合金材料、不銹鋼材料、鈦材、鉻和其他表面合金制作,大大提高了設備耐磨損、耐腐蝕、耐高溫及耐壓能力,使該機組具有較長的使用壽命。
工藝流程:
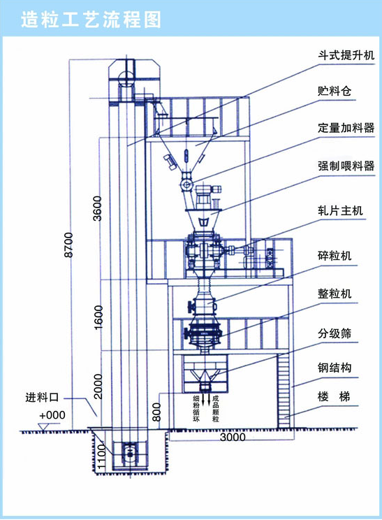
干粉通過螺旋輸送機、皮帶機或人工搬運進入斗式提升機的原料倉,由斗式提升機將原料粉末送入振動式過渡料倉,通過定量加料裝置將物料均勻地送入變頻式立式螺旋喂料機,對物料進行脫氣預壓縮,經預壓縮的物料被壓入兩個相對轉動的壓輥中間進行壓產,被壓實的條片狀物料自動脫槽后進入破碎機,被破碎成大小不均的顆粒,然后進入整粒機進行修整,修整后的顆粒通過帶網孔的篩板被擠壓出來進入篩分機,成品顆粒通過篩分后直接包半或進入斗式提升機被送入成品倉,篩分下來的粉狀物料

CHENJU GANZAO
Enterprise strengthCHENJU GANZAO
Relevant news
全國統(tǒng)一服務熱線
1396141668513961416685
掃一掃聯(lián)系我們